Ufficio in affitto

Paderno Dugnano, Via San Carlo
€ 12.500 / anno
3 locali 3 locali
70 Mq 70 Mq
1 bagno 1 bagno

Ufficio in affitto

Paderno Dugnano, Via San Carlo

Descrizione annuncio

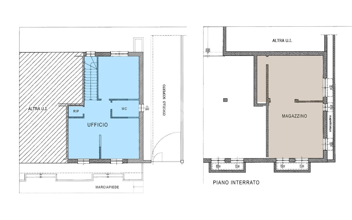
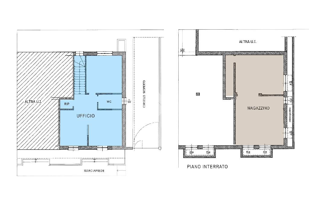
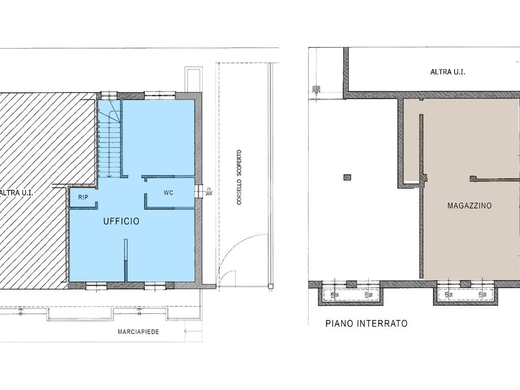
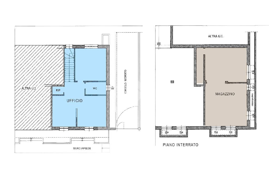
PADERNO DUGNANO - UFFICIO MQ 70 + MAGAZZINO MQ 70 - A Palazzolo, nelle vicinanze della stazione, in un contesto residenziale proponiamo una soluzione di ufficio per anni sede di studio medico. Lo spazio sarà sottoposto a radicale ristrutturazione con riscaldamento a pavimento e sarà collegato con scala interna ad ampio magazzino altrettanto ristrutturato. AFFITTASI. Con un'operatività iniziata nei primissimi anni '90, l'ufficio Industriale di Paderno Dugnano si attesta a buon diritto tra le primissime realtà che si sono occupate di sviluppare un patrimonio di competenze specifiche nell'ambito dell'intermediazione immobiliare nel settore industriale. Tutti questi anni di lavoro hanno prodotto una straordinaria conoscenza del tessuto industriale presente nei comuni - che ricordiamo essere Paderno Dugnano, Cusano Milanino, Cormano, Novate Milanese, Bollate e Senago - nei quali l'ufficio direttamente opera e che mettiamo volentieri a disposizione dei nostri clienti.

Mostra tutto

Nelle vicinanze

Trasporto pubblico Trasporto pubblico
Palazzolo Milanese
Palazzolo Milanese
380 m
Varedo
Varedo
1,7 Km
Via Castelletto - Via Volta (Castelletto)
Via Castelletto - Via Volta (Castelletto)
1,3 Km
Via Castelletto (Molino) (Paderno Dugnano)
Via Castelletto (Molino) (Paderno Dugnano)
1,3 Km
Via Sant'Ambrogio - Via San Biagio (Palazzolo)
Via Sant'Ambrogio - Via San Biagio (Palazzolo)
140 m
Ricariche auto elettriche Ricariche auto elettriche
Centro Commerciale Brianza
1,6 Km
LIMBIATE Buozzi | BECHARGE
1,8 Km
Limbiate Mille | Becharge
2,3 Km
Centro Commerciale Ramonda
3,0 Km
Scuole Scuole
Scuola Primaria "Lia De' Vecchi Fisogni"
240 m
Scuola Secondaria di I Grado "Don Giovanni Minzoni"
540 m
Scuole
790 m
Scuola dell'infanzia di via Anzio
820 m
Scuola Primaria "Giuseppe Mazzini"
850 m
Farmacia Farmacia
San Martino
320 m
Comunale N.1
500 m
Comunale 2
530 m
Aurora
1,0 Km
Farmacia Centrale Ferrero
1,4 Km
Ospedali Ospedali
Ospedale
950 m
Clinica San Carlo
980 m
Supermercati Supermercati
U2
840 m
Carrefour Market
1,2 Km
Punto Simply
1,4 Km
Carrefour Paderno
1,7 Km
Il Gigante
1,9 Km
Negozi Negozi
Negozi
350 m
Il Pizzicagnolo
430 m
Ghezzi
1,2 Km
Angie
1,3 Km
Bazar Milleidee
1,3 Km
Bar Bar
Bar
290 m
Roby American Bar
520 m
Bar Kappa
1,3 Km
Emotion
1,4 Km
Bar Commercio
1,5 Km
Ristoranti Ristoranti
Novecento
390 m
Il Cavaliere
800 m
Hotel Mirage
900 m
Bar Ristorante - Sirenella
1,1 Km
PizzaRound no limits
1,2 Km
Mostra tutto

Caratteristiche

Rif.:
61115331
Piano:
2 di 2 (Piano su più livelli)
Condizionamento:
Assente
Ascensore:
No
Riscaldamento:
Autonomo
Libero:
Mostra tutto
Prezzo Prezzo
€ 12.500 / anno
Spese annue Spese annue
€ 0

Altre caratteristiche

Classe Energetica

F
F
F
F
F
F
F
F
F
EP globale non rinnovabile:
111.11 kW h/m² anno
EP globale rinnovabile:
11.11 kW h/m² anno
EP invernale del fabbricato:
EP estiva del fabbricato:
Anno di costruzione:
2001
Riscaldamento:
Autonomo
Tipo impianto:
A pavimento
Tipo alimentazione:
Metano

Ti interessa visionare l'immobile?

Fissa un appuntamento  Fissa un appuntamento

Richiedi informazioni

Clicca su Leggi per aprire l'informativa
* Questi campi sono obbligatori
Affiliato
Studio Paderno Srl
Via Roma, 170 20037 Paderno Dugnano (MI)

Il nostro staff


  • Pasquale Mascolo
    Responsabile

  • Walter Mangione
    Collaboratore

  • Pierangelo Lovato
    Collaboratore

  • Luca Ortolani Della Nave
    Affiliato
Via Roma, 170 20037 Paderno Dugnano (MI)
Zona: Bollate-Cormano-Cusano-Novate-Paderno-Senago-Baranzate-Cinisello-Bresso-Sesto SSG
Mostra su mappa
Orari: Dal lunedì al venerdì: 9.00 - 12.30 / 14.30 - 19.30. Il sabato: 9.00 - 12.30.
Affiliato
Studio Paderno Srl
Via Roma, 170 20037 Paderno Dugnano (MI)

2026 Tecnocasa Franchising S.p.A. - P. IVA 08365160152 - Via Monte Bianco 60/A 20089 Rozzano (MI). Ogni agenzia ha un proprio titolare ed è autonoma. Privacy policy | Policy utilizzo | Cookie policy